Категории

Кран шаровой стандартнопроходной специальная серия MAX резьбовой

Характеристики

Макс. температура (Т) °С.: до +200 °С

Мин. температура (Т) °С.: до -60 °С (исп. ХЛ)

Класс герметичности: Класс «А» ГОСТ 9544-2015

Срок службы: 40 лет*

Гарантийный срок: 10 лет

Материалы корпуса: Сталь 09Г2С

Проход: Стандартнопроходной

Присоединение: резьбовое/резьбовое

Серия кранов с усовершенствованными техническими характеристиками. Передовые инженерные решения и высококачественные материалы обеспечивают максимальную надежность, долговечность и эффективность на трубопроводах с жидкими и газовыми средами

Рабочая среда:

Теплосетевая вода, нефтепродукты, ГСМ и другие рабочие среды, неагрессивные для материалов
деталей крана.
 

Краны имеют все необходимые сертификаты и разрешения

Уникальная конструкция ремонтопригодной горловины с эффектом самоуплотнения позволяет восстановить уплотнения без демонтажа шарового крана

Маркировка индивидуального номера крана наносится нестираемым способом согласно ГОСТ 4666-2015 и позволяет идентифицировать кран на протяжении всего срока службы

Конструкция крана испытана на герметичность в сложных условиях путем сжатия, растяжения и изгиба согласно международным нормам

Примечания:

По заказу краны могут поставляться с редуктором.

* При условии соблюдения правил эксплуатации.

Модификации

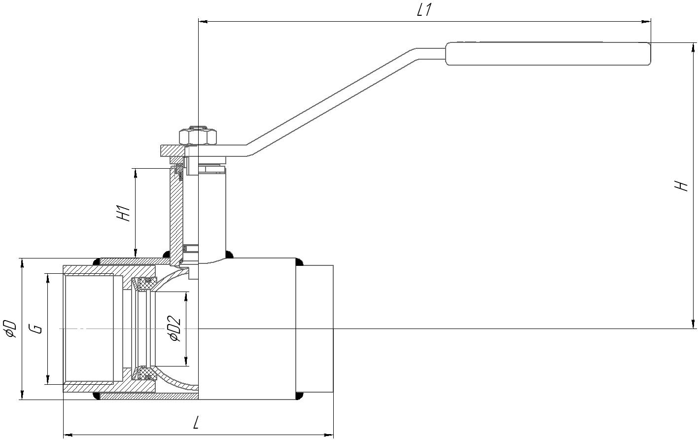
Артикул DN PN L L1 H H1 D G D2 Вес, кг
98020015 MAX 15 40 100 143,8 138,8 45,8 42 1/2 10 0,73
98020020 MAX 20 40 100 143,8 142,1 49,1 42 3/4 15 0,70
98020025 MAX 25 40 100 143,8 144,7 48,7 48 1 18 0,92
98020032 MAX 32 40 100 143,8 149,3 48,8 57 1 1/4 24 1,17
98020040 MAX 40 40 120 243 145 47,6 60 1 1/2 30 1,60
98020050 MAX 50 40 145 243 153,5 48,1 76 2 40 2,49
98020065 MAX 65 25 190 243 159,5 47,6 89 2 1/2 48 3,95
98020080 MAX 80 25 200 277,6 193,8 69,4 114 3 63 5,76
98020100 MAX 100 25 240 277,6 203,5 69,6 133 4 75 10,78