Категории
Кран шаровой полнопроходной 292 с фланцем для установки привода
Характеристики
Макс. температура (Т) °С.: до +200 °С
Мин. температура (Т) °С.: до -40 °С (исп. У), до -60 °С (исп. ХЛ)
Класс герметичности: Класс «А» ГОСТ Р54808-2011
Срок службы: Не менее 25 лет
Гарантийный срок: 3 года или не менее 10 000 циклов
Материалы корпуса: Сталь 20/09Г2С/12Х18Н10Т
Тип присоединения:
приварной/приварной
Рабочая среда:
Теплосетевая вода, нефтепродукты, ГСМ и другие рабочие среды, неагрессивные для материалов деталей крана
*Краны DN700 - 1400 изготавливаются под заказ. Информация по кранам DN700 - 1400 предоставляется по запросу.
Модификации
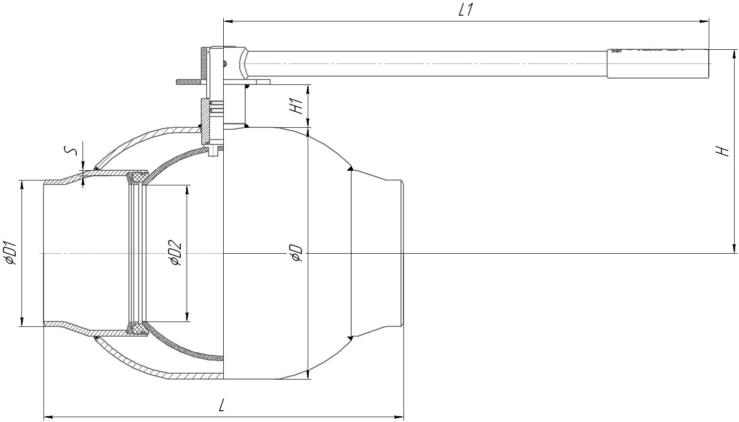
| Артикул | DN | PN | L | L1 | H | H1 | D | D1 | D2 | S | Вес | |
|---|---|---|---|---|---|---|---|---|---|---|---|---|
| 29220100 | 100 | 25 | 330 | 525 | 187 | 50 | 180 | 108 | 100 | 5 | 14,30 | |
| 29220125 | 125 | 25 | 360 | 525 | 203 | 47 | 219 | 133 | 125 | 5 | 18,75 | |
| 29220150 | 150 | 25 | 390 | 525 | 228 | 45 | 273 | 159 | 148 | 6 | 25,00 | |
| 29220200 | 200 | 25 | 510 | 1030 | 273 | 51 | 351 | 219 | 200 | 8 | 58,25 | |
| 29220250 | 250 | 25 | 730 | - | 414 | 101 | 426 | 273 | 240 | 10 | 123,00 | |
| 29220300 | 300 | 16/25 | 730 | - | 464 | 101 | 530 | 325 | 300 | 10 | 235,00 | |
| 29220400 | 400 | 16/25 | 970 | - | 560 | 103 | 630 | 426 | 390 | 10 | 454,00 | |
| 29220500 | 500 | 16/25 | 991 | - | 664 | 122 | 820 | 530 | 500 | - | 827,5 | |
| 29220700 | 700* | 16/25 | 1150 | - | - | 88 | 970 | 720 | 600 | 13 | ||
| 29220800 | 800* | 16/25 | 1346 | - | - | 132 | 1120 | 820 | 700 | 13 | ||
| 292201000 | 1000* | 16/25 | 1524 | - | - | 82 | 1220 | 1020 | 780 | 15 | ||
| 292201200 | 1200* | 16/25 | 1650 | - | - | 82 | 1420 | 1220 | 1000 | 15 |